Kamin- und Kachelofenbau Schroeter :: Anlagen mit Wasser

FlammeAnlagen mit Wasser-Wärmetauschern

 

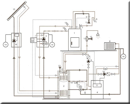
Kachelofen- oder Kamin-Heizeinsätze mit Wasser-Wärmetauschern

Der Warmluftkachelofen mit zusätzlicher Wassertechnik liefert neben der
Warmluft- und Strahlungswärme entweder wahlweise durch Umschalttechnik
(Aufsatzkessel) oder gleichzeitig (Kesseltechnik) warmes Wasser zur Einspeisung
in die Heizungsanlage (Pufferspeicher).

Er ist weiterhin mit der Solarthermie kombinierbar, sodass auch die
Brauchwasserbereitung problemlos eingebunden werden kann.

 

Das System vom Kachelofen- oder Kamin-Heizeinsätze mit Wasser-Wärmetauschern

 

Zur Homepage